STUDIO effort
快適な空間と充実の設備でクライアントの満足を実現します。
スタジオについて

収録
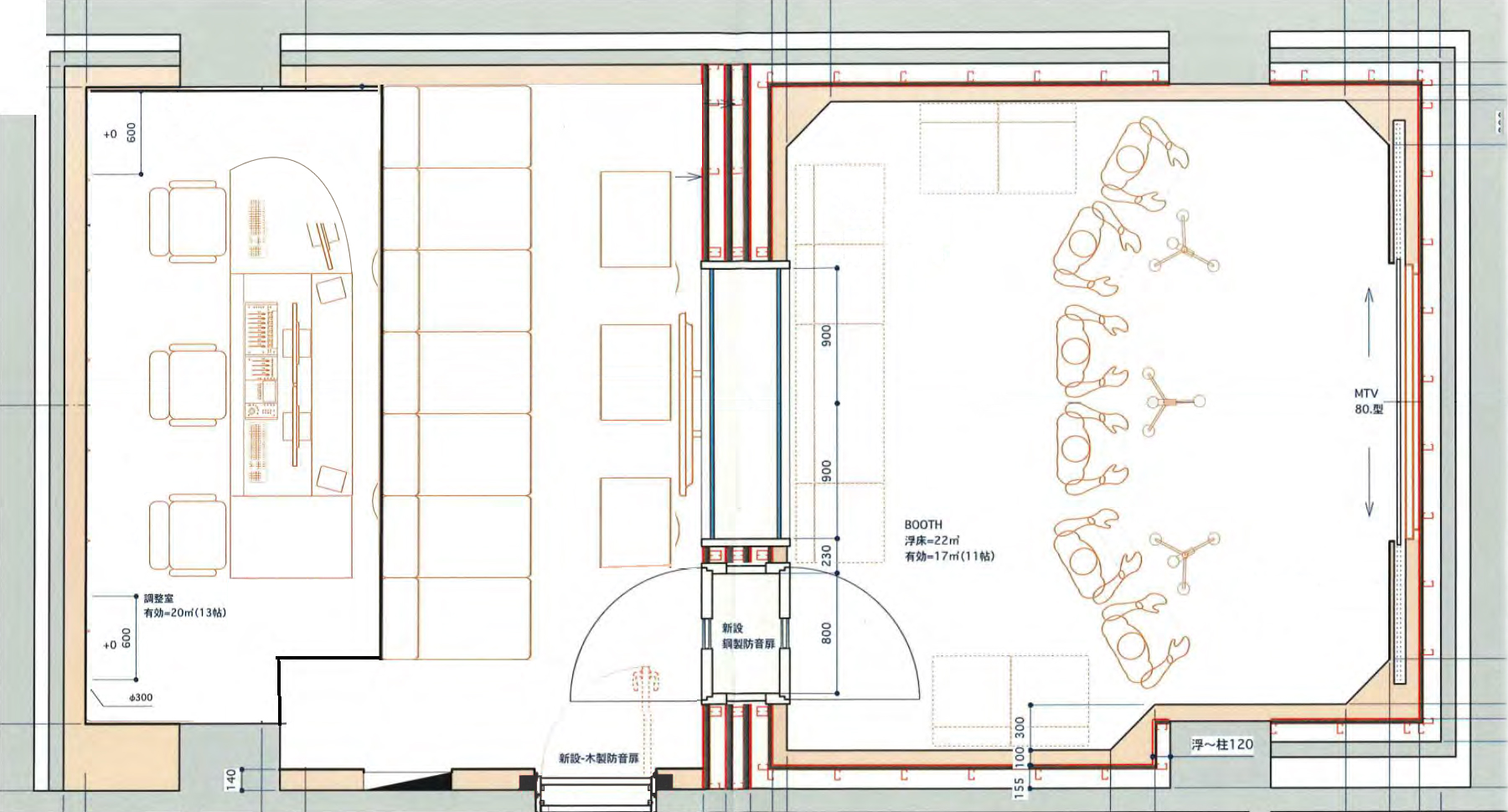
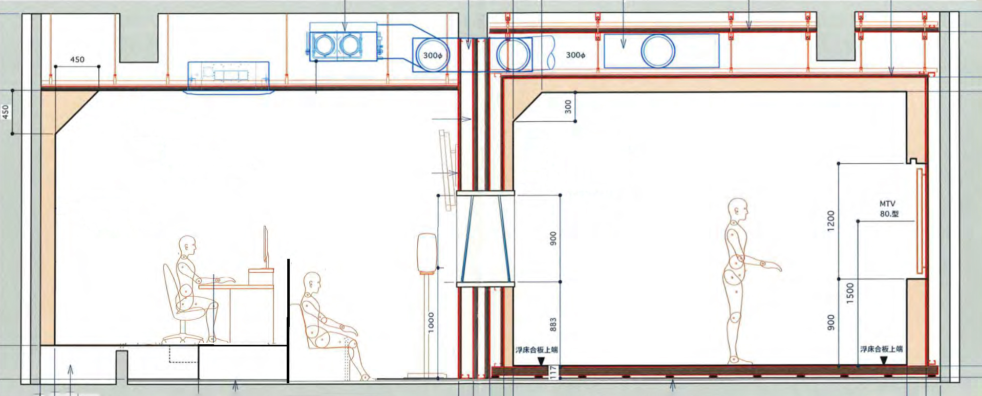
11帖の収録ブースと13帖のコントロールルームという構造で、音声収録やレコーディングなど、幅広く活用して頂けるスタジオです。
作業内容に関しても、お気軽にお問い合わせください。

ダミーヘッドマイク
このダミーヘッドマイクは、バイノーラル技術を使って録音ができるマイクです。両耳にマイクが入っていて、普段人が聞いている「耳の志向性」で音をとらえます。
イヤフォン、ヘッドフォンを使用して聴くと、音の方向、距離感などがリアルに聴こえ、立体感のある音声が得られます。
使用料はスタジオ料金に含まれています。
(※ダミーヘッドマイクの外部レンタルは行っておりません。)

多彩な収録に対応
ゲームやAR,レコーディングなどいろいろな収録状況に応じた環境の提供をしております。

調整室
ゆったりとした空間とエンジニアによる高い技術でクライアントの期待に応える確かな音質を提供します。


待合室
収録の間こちらでお待ち頂けます。
EQUIPMENT 機材・設備


| 項目 | メーカー | 型番 | 個数 |
| CONSOLE【MAIN】 | Avid | S1 | 1 |
| CONSOLE【SUB】 | Avid | Artist Mix | 1 |
| AUDIO INTERFACE【MAIN】 | Avid | HD I/O | 1 |
| AUDIO INTERFACE【SUB】 | Avid | HD I/O | 1 |
| VIDEO INTERFACE | Black Magic Design | Ultra Studio Monitor | 1 |
| MONITOR CONTROLLER | GRACE DESIGN | m905 Analog | 1 |
| MASTER CLOCK GENERATOR | TASCAM | CG-1800 | 1 |
| Mac【MAIN】 | Apple | Mac Studio(2023) | 1 |
| Mac【SUB】 | Apple | MacPro | 1 |
| DAW【MAIN】 | Avid | ProTools Ultimate(2024.6.0) | |
| DAW【SUB】 | Avid | ProTools Ultimate(2024.6.0) | |
| PLUG-IN【MAIN】 | Dolby WAVES UNIVERSAL AUDIO iZotope Antares Audio Technologies SLATE DIGITAL Nugen Audio Serato |
Dolby Atomos Renderer Mercury UAD Ultimate 13 Bundle Chandler Zener Limiter SPL Translent Designer Summit Audio TLA-100A AMS RMX16 Neve Dynamics Collection Ampeg B15N RX11 Standard Vocal Synth2 Neoverb Auto-Tune Pro11 TRIGGER2 LM Correct2 VisLM2 Pitch'n Time Pro |
|
| PLUG-IN【SUB】 | WAVES | Mercury | |
| MIC | NEUMANN AKG audio Technica SHURE ZENNHEISER |
KU-100 U87Ai TLM103 C414 XLS C-451 C-414 D-112 AT5040 SM-57 SM-58 SM-63 MD-421 MD-421 Kompakt |
1 3 4 1 2 2 1 1 3 1 1 4 4 |
| MIC PRE | Rupart Neve Design SymProceed AVALON DESIGN Solid State Logic |
Portico 511 R10 SP-MP2 VT-737sp Xlogic Alpha VHD Pre |
10 1 2 1 1 |
| COMPRESSOR / LIMITER | TUBE-TECH | CL1B | 1 |
| CUE SYSTEM | Current Behringer |
SC6014 PS6014P POWERPLAY 16-I POWERPLAY 16-M |
1 1 1 4 |
| WIRELESS SYSTEM | SoundSkip | M-TXRX11, M-RX11 | 15 |
料金
スタジオ使用料(エンジニア料金,機材使用料含む)お問い合わせください。
音編集も行っております。ご使用の依頼や質問などCONTACTページよりお気軽にお問い合わせください
※キャンセル料金について
前日キャンセル:料金の50%
当日キャンセル:料金の100%
アクセス
最寄り駅より
JR中央・総武線 大久保駅北口より徒歩10分
音響制作・スタジオレンタル依頼
まずはお気軽にお問い合わせください
